Новости, обзоры и акции
Новости, обзоры и акции
|
|
|
|
|
|
(0)
|
Kronas Unic 17кВт
Твердотопливный котел Kronas Unic17кВт обогревает жилые помещения до 170м2. Благодаря использованию автоматического контроля за горением топрлива удалось достичь 82% КПД. Для эксплуатации можно использовать разные виды топлива: аголь, древесные брикеты, пеллеты, древесину и т.д. При этом, время горения будет различным. Твердотопливный котел простой в эксплуатации, ведь пользователю необходимо только загрузить топливо в камеру сгорания и поджечь, а дальше контроллеры будут самостоятельно регулировать процесс горения. Для поддержания процесса горения используется нагнетательный вентилятор, который через форсунки подает воздух в камеру сгорания. Когда температура горения достигает максимально заданной, контроллер отключает вентилятор и топливо начинает просто тлеть. Когда температура опускается до минимально допустимой, нагнетательный вентилятор снова включаетсяи начинает разжигать котел. Автоматика производится польским производителем и соответствует всем европейским нормам энергосбережения и надежности. Конструкция котла для улучшения теплообмена выполнена по принципу водяной рубашки. Теплоизоляция вокруг внутренней части корпуса препятствует наружной потери тепла. Благодаря этому корпус котла не нагревается и нахождение возле него детей или домашних животных достаточно безопасное. Однако, при возможности котел лучше располагать в отдельном помещении. |
Твердотопливные котлы Kronas Unic 17кВт |
|||
|
|
|||
|
Параметр |
Ед. измер. |
Показатели |
|
|
Номинальная теплопроизводительность (мощность) котла |
кВт |
17 |
|
|
Ориентировочная отапливаемая площадь |
м2 |
170 |
|
|
Топливо |
основное |
— |
антрацит, каменный уголь |
|
альтернативное |
— |
дрова |
|
|
Площадь поверхности теплообмена в котле |
м2 |
1,8 |
|
|
Коэффициент полезного действия (основное топливо), не менее |
% |
82 |
|
|
Разовая загрузка топлива |
кг |
36 |
|
|
Продолжительность сгорания разовой загрузки топлива |
год |
8-24 |
|
|
Размеры топки |
глубина |
мм |
410 |
|
ширина |
мм |
295 |
|
|
обьем |
дм3 |
41 |
|
|
Водяная емкость котла |
л |
62 |
|
|
Масса котла без воды |
кг |
250 |
|
|
Необходимая тяга топочных газов |
Па |
23-30 |
|
|
Температура топочных газов на выходе из котла |
°C |
100-180 |
|
|
Рекомендуемая минимальная температура воды |
°C |
58 |
|
|
Максимальная температура воды |
°C |
90 |
|
|
Номинальный (максимальный рабочий) давление воды |
МПа |
0,15 |
|
|
Испытательное давление воды, не более |
МПа |
0,3 |
|
|
Потребление электроэнергии (контроллер + вентилятор) (230 В, 50 Гц), не более |
Вт |
40 |
|
|
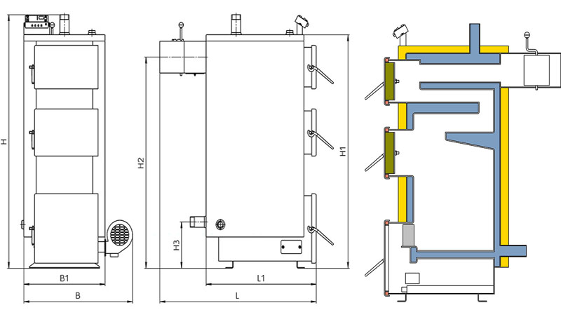
Габаритные размеры котла |
B |
мм |
650 |
|
B1 |
470 |
||
|
H |
1310 |
||
|
H1 |
1200 |
||
|
H2 |
1085 |
||
|
H3 |
235 |
||
|
L |
975 |
||
|
L1 |
675 |
||
|
Размеры загрузочной дверцы |
высота |
мм |
230 |
|
ширина |
мм |
295 |
|
|
Присоединительные (внешние) размеры боровая |
мм |
150 |
|
|
Диаметр патрубков прямой и обратной сетевой воды (Ду) |
мм |
50 |
|
|
Рекомендуемые параметры дымохода |
площадь сечения |
см2 |
225 |
|
внутренний диаметр |
мм |
170 |
|
|
высота (минимально допустимая) |
м |
5 |
|
|
Цена, грн с НДС |
|
|
|

Габаритные размеры Kronas Unic |
|||
|
Габаритные размеры котла |
B |
мм |
650 |
|
B1 |
470 |
||
|
H |
1310 |
||
|
H1 |
1200 |
||
|
H2 |
1085 |
||
|
H3 |
235 |
||
|
L |
975 |
||
|
L1 |
675 |
||
|
|
|
|
|
|
(0)
|
|
|
|
|
|
|
(0)
|
|
|
|
|
|
|
(0)
|
|
|
|
|
|
|
(0)
|
Новости, обзоры и акции


