Новости, обзоры и акции
Новости, обзоры и акции
|
|
|
|
|
|
(0)
|
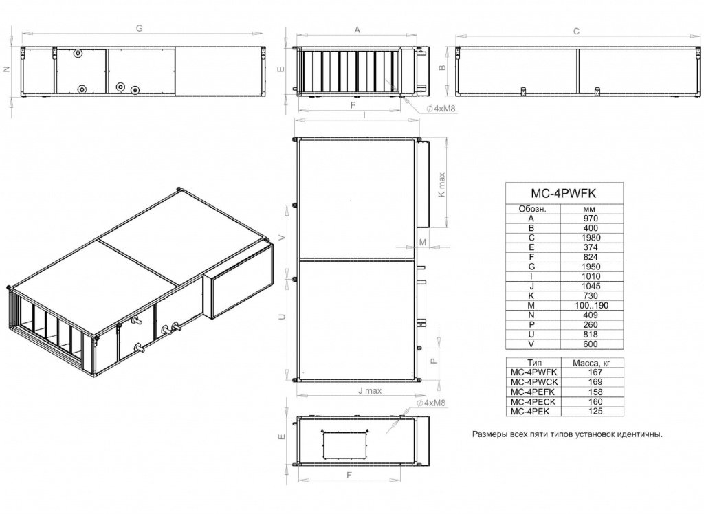
Данная подвесная установка имеет достаточно компактные размеры в сочетании с максимальной производительностью и надежностью всех имеющихся компонентов. Кроме этого, вентиляционный прибор может похвалиться каскадным регулированием приточной температуры с учетом наружной компенсации.
С того момента, когда подвесные установки вышли в реализацию на климатическом рынке и стали использоваться многими пользователями, они менялись в своей конструкции и полностью усовершенствовались в некоторых технических и функциональных моментах. Такие достаточно образцовые тенденции являются позитивными для общего технологического рынка и его будущего развития, но основная ситуация заключается в том, кто именно выступает производителем данной вентиляционной продукции и какого уровня разработчики в той или иной компании.
По этому, стоит говорить и выделять главные позитивные особенности компании по производству вентиляционных продуктов АСМ, изготовляющая подвесные установки уже достаточно долгое время и оперативно реализующая их на мировом климатическом рынке. Главным примером и основным достоинством компании выступает модель вытяжной установки МС-4PEK, характеризующаяся наличием всех необходимых инновационных функций и производительных структурных компонентов. В данном приборе на первый план вышел главный корпус, разработчики которого решили сделать его из стали, тем самым придав общей конструкции и основной системе прочности и многофункциональности в использовании. Также, установка может похвалиться наличием свободного охлаждения и своевременного оттаивания теплообменника.
|
Подвесная приточно-вытяжная установка АСМ МС-4PEK
|
|
|
|
|
|
Характеристика |
Описание |
| Тип | Подвесная приточно-вытяжная установка |
|
Тип установки |
Подвесной |
| Тип нагревателя | Водяной |
| Параметры электропитания |
3/400/50 |
| Расход воздуха до |
4000 м3/ч |
|
Мощность приточного вентилятора |
1,5 кВт |
| Фильтр |
EU 4 |
|
Диапазон наружных температур |
от -25°С до +45°С |
| Материал корпуса | Алюцинк |
| Страна производитель |
Украина |
| Масса изделия | 125 кг |
| Габаритные размеры изделия (ширина, высота, длина) мм | 970-824-374 |
|
|
|
|
|
|
(0)
|
|
|
|
|
|
|
(0)
|
|
|
|
|
|
|
(0)
|
|
|
|
|
|
|
(0)
|
Новости, обзоры и акции

