Новости, обзоры и акции
Новости, обзоры и акции
|
|
|
|
|
|
(0)
|
Приточно-вытяжная установка с рекуперацией тепла VR/VX 400 EV купить, цена, характеристики, фото
Общие сведения: Приточно-вытяжная установка с рекуперацией тепла VR/VX используется для очистки воздуха и поддержания необходимой температуры и влаги в помещениях:
Рекомендации по применению: Установки с рекуперацией тепла широко используют для вентиляции квартир, домов, офисов.
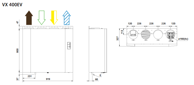
Конструкция: Приточно-вытяжная установка с рекуперацией тепла VX состоит из панели управления, пластинчатого теплообменника, приточного и вытяжного центробежного вентилятора, фильтров и двух воздухонагревателей. Когда переработка тепла не нужна, пластинчатый теплообменник может быть заменен летним блоком. Приточно-вытяжная установка с рекуперацией тепла VR состоит из панели управления, роторного теплообменника, приточного и вытяжного радиального вентилятора, двух воздухонагревателей и фильтров. Достоинством установки VR является автоматическое переключения на летний режим. Корпус установки VX/ VR покрыт с двух сторон сталью гальванизированной. Некоторые модели покрыты белой порошковой краской, например VX 400E и VX 700E. Изоляцию установок VX/ VR осуществляют с помощью 50мм минеральной ваты. Для шумоизоляции на входе и выходе приточно-вытяжных установок VX/ VR устанавливают шумогасители.
Двигатель: В приточно-вытяжных установках с рекуперацией тепла используют высокоэффективные ЕС-двигатели вентиляторов.
Монтаж: Предназначены для монтажа на стену на кронштейны или в подсобных помещениях.
Технические характеристики приточно-вытяжных установок с рекуперацией тепла VR/VX указаны в таблице
|
|
||||||||
|
|
||||||||
|
Технические данные |
Напряжение/Частота |
Фазность |
Мощность, двигатели |
Мощность, нагреватель |
Предохранитель |
Вес |
Фильтр, приток |
Фильтр, вытяжка |
|
Модель |
В/50Гц |
~ |
Вт |
кВт |
A |
кг |
- |
|
|
400 EV |
230 |
1 |
2 x 138 |
1.67 |
10 |
55 |
F7 |
Al |
|
|
|
|
|
|
(0)
|
|
|
|
|
|
|
(0)
|
|
|
|
|
|
|
(0)
|
|
|
|
|
|
|
(0)
|
Новости, обзоры и акции
