Новости, обзоры и акции
Новости, обзоры и акции
|
|
|
|
|
|
(0)
|
Приточно-вытяжная установка TA EL - это экономная установка с высоким уровнем мощности и приятной стоимостью.
Приточно-вытяжная установка TA 7000 HW купить, цена, характеристики, фото
Общие сведения: Приточно-вытяжная установка TA используется для очистки воздуха и поддержания необходимой температуры и влаги в помещениях. Установка TA представлена в двух вариантах TA EL с электрическим нагревателем воздуха и TA HW с водяным.
Рекомендации по применению: притонные установки TA часто используют в общественных помещениях, где выставляют высокие требования к уровню шума (торговые центры, школы, кинотеатры и т.п.). Их можно устанавливать в помещениях с холодным климатом.
Конструкция: В конструкцию приточной установки TA входят вентилятор с рабочим колесом с загнутыми назад лопатками, водяной нагреватель воздуха у модели TA HW и обычный нагреватель воздуха для модели TA EL и фильтр. Корпус установки изготовлен из стали оцинкованной. У него также есть 50мм звуко- и теплоизоляция из минеральной ваты. Фланцы установки оборудованы резиновыми прокладками для плотного соединения. Приточная установка TA оснащена пультом управление, что повышает комфортность эксплуатации. Благодаря встроенной системе автоматики, установка становится легко управляемая. В моделях с электрическим нагревателем температура воздуха регулируется пультом управления с помощью регулятора мощности. Водяной нагреватель подключается к горячей воде с помощью фитингов. Приточная установка TA подключается к сети через клеммную коробку. В установку TA можно дополнительно встроить водяной или фреоновый охладитель воздуха, который регулируется автоматикой установки. Он устанавливается в том же воздуховоде после приточной установки.
Двигатель: Для защиты от перегрева двигатели вентиляторов, что входят в установки, оборудованы термоконтактами, что электрически перезапускаются.
Регулировка скорости: Регулировка скорости вентиляторов, которые используются в приточной установке TA, выполняется с помощью трансформатора 2-х ступенчатого.
Монтаж: Приточно-вытяжная установка TA может монтироваться на стену на кронштейнах, а также благодаря ее небольшим габаритам она может быть спрятана за подвесным потолком.
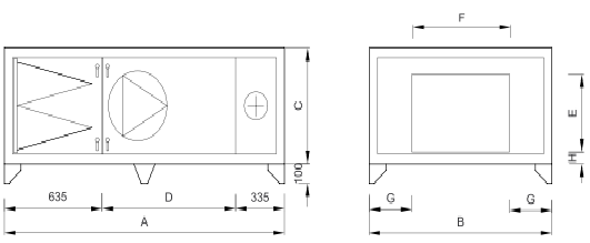
Технические характеристики моделей приточной установки TA указаны в таблице.
|
|
Технические данные |
Модель |
7000HW |
||||||
|
Напряжение/Частота |
В/50Гц |
400 |
|||||||
|
Фазность |
~ |
3 |
|||||||
|
Мощность, двигатели |
Вт |
3160 |
|||||||
|
Мощность, нагреватель |
кВт |
* |
|||||||
|
Предохранитель |
A |
3 x 16 |
|||||||
|
Вес |
кг |
335 |
|||||||
|
Фильтр, приточ.воздух |
- |
400 |
|||||||
|
|
|||||||||
|
|
A |
B |
C |
D |
E |
F |
G |
H |
|
|
TA-7000HW |
1720 |
1720 |
670 |
750 |
400 |
800 |
235 |
85 |
|
|
|
|
|
|
|
(0)
|
|
|
|
|
|
|
(0)
|
|
|
|
|
|
|
(0)
|
|
|
|
|
|
|
(0)
|
Новости, обзоры и акции
