Новости, обзоры и акции
Новости, обзоры и акции
|
|
|
|
|
|
(0)
|
Приточно-вытяжная установка FR устанавливается просто и быстро с помощью кронштейнов. Монтаж производится на стену, за подвесным потолком в подсобных помещениях.
Приточно-вытяжная установка Topvex FR 08 -CAV (L/R) купить, цена, характеристики, фото
Общие сведения: Установка Topvex FR используется для очистки воздуха и поддержания необходимой температуры и влаги в помещениях:
Рекомендации по применению: Приточно-вытяжные установки с рекуперацией тепла широко используют для вентиляции квартир, домов, офисов, школ, детских садов.
Конструкция: В приточно-вытяжную установку Topvex FR входит система автоматики, роторный теплообменник, приточный и вытяжной центробежный вентилятор, фильтры и электрический воздухонагреватель в модели FR EL, водяной в модели FR HW. Корпус установки Topvex FR из изолированных панелей из двух листов стали оцинкованной и алюминиевых профилей. Изоляцию установок Topvex FR осуществляют с помощью 50мм минеральной ваты.
Двигатель: В приточно-вытяжных установках с Topvex FR используют высокоэффективные ЕС-двигатели вентиляторов.
Монтаж: Предназначены для монтажа на стену на кронштейны, может устанавливаться за подвесным потолком или в подсобных помещениях.
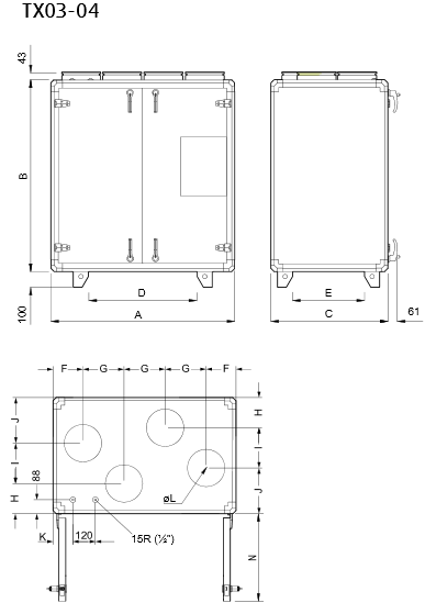
Технические характеристики приточно-вытяжных установок Topvex FR указаны в таблице
|
|
|||||||||||||||||||||||||||
|
Модель |
Производительность м3/ч |
Вес кг. |
Напряжение [B] |
Мощность двигателя [Вт] |
|||||||||||||||||||||||
|
Topvex FR 08 -CAV (L/R) |
3500 |
326 |
400V |
2*972 |
|||||||||||||||||||||||
|
Topvex FR |
A |
B |
C |
?D |
E |
F |
G |
H |
I |
J |
K |
L |
M |
N |
P |
Q |
R |
S |
T |
U |
W |
X |
Y |
||||
|
08 |
2230 |
1515 |
740 |
500 |
60 |
355 |
350 |
650 |
400 |
1545 |
790 |
2004 |
1450 |
514 |
103 |
106 |
120 |
375 |
695 |
275 |
706 |
807 |
384 |
||||
|
|
|
|
|
|
(0)
|
|
|
|
|
|
|
(0)
|
|
|
|
|
|
|
(0)
|
|
|
|
|
|
|
(0)
|
Новости, обзоры и акции
