Новости, обзоры и акции
Новости, обзоры и акции
|
|
|
|
|
|
(0)
|
Приточно-вытяжная установка SX укомплектована системой автоматики, приточным и вытяжным фильтрами, воздухонагревателем, обводным каналом, пластинчатым теплообменником.
Приточно-вытяжная установка Topvex SX 04 EL купить, цена, характеристики, фото
Общие сведения: Установка с рекуперацией тепла Topvex SX используется для очистки воздуха и поддержания необходимой температуры и влаги в помещениях:
Рекомендации по применению: Приточно-вытяжные установки широко используют для вентиляции квартир, домов, офисов, школ, детских садов.
Конструкция: В приточно-вытяжную установку Topvex SX входит система автоматики, пластинчатый теплообменник с эффективностью работы 65%, приточный и вытяжной центробежный вентилятор, фильтры и электрический воздухонагреватель в модели SX EL, водяной в модели SX HW. Корпус установки Topvex SX из изолированных панелей из двух листов стали оцинкованной и алюминиевых профилей. Изоляцию установок Topvex SX осуществляют с помощью 50мм минеральной ваты. Электрическое подключение установки производится через клеммную коробку, где все четко обозначено.
Двигатель: В приточно-вытяжных установках с Topvex SX используют высокоэффективные ЕС-двигатели вентиляторов.
Монтаж: Предназначены для монтажа на стену на кронштейны или в подсобных помещениях. Техобслуживание электрической части установки производится через отдельную дверцу.
Технические характеристики приточно-вытяжных установок с рекуперацией тепла Topvex SX указаны в таблице
|
|
Технические данные |
Модель |
SX04EL |
|||||||||||||||
|
Напряжение |
В |
400 |
||||||||||||||||
|
Частота |
Гц |
50 |
||||||||||||||||
|
Мощность двигателя |
Вт |
2х1069 |
||||||||||||||||
|
Мощность нагревателя |
кВт |
12 |
||||||||||||||||
|
Предохранитель |
А |
3х25 |
||||||||||||||||
|
Вес |
кг |
260 |
||||||||||||||||
|
Фильтр, приточ.воздух |
- |
F7 |
||||||||||||||||
|
Фильтр, вытяжной.воздух |
- |
F5 |
||||||||||||||||
|
Фазность |
3 |
3 |
||||||||||||||||
|
|
||||||||||||||||||
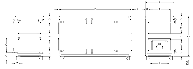
|
|
A |
B |
C |
D |
E |
F |
G |
H |
I |
J |
K |
L |
X |
Y |
Z |
|||
|
SX04 |
800 |
500 |
250 |
187 |
167 |
150 |
1041 |
171 |
183 |
30 |
1747 |
520 |
355 |
212 |
106 |
|||
|
|
|
|
|
|
(0)
|
|
|
|
|
|
|
(0)
|
|
|
|
|
|
|
(0)
|
|
|
|
|
|
|
(0)
|
Новости, обзоры и акции
