Новости, обзоры и акции
Новости, обзоры и акции
|
|
|
|
|
|
(0)
|
Установка приточно-вытяжная TХ запрограммирована прямо изготовителем и не требует дополнительных настроек.
Приточно-вытяжная установка Topvex TX 04 EL купить, цена, характеристики, фото
Общие сведения: Установка Topvex TX используется для очистки воздуха и поддержания необходимой температуры и влаги в помещениях:
Рекомендации по применению: Приточно-вытяжные установки с рекуперацией тепла широко используют для вентиляции квартир, домов, офисов, школ, детских садов.
Конструкция: В приточно-вытяжную установку Topvex TX входит система автоматики, пластинчатый теплообменник, приточный и вытяжной центробежный вентилятор, обводной канал, фильтры и электрический воздухонагреватель в модели TX EL, водяной в модели TX HW. Корпус установки Topvex TX из изолированных панелей из двух листов стали оцинкованной и алюминиевых профилей. Изоляцию установок Topvex TX осуществляют с помощью 50мм минеральной ваты.
Двигатель: В приточно-вытяжных установках с Topvex TX используют высокоэффективные ЕС-двигатели вентиляторов.
Монтаж: Предназначены для монтажа на стену на кронштейны или в подсобных помещениях.
Технические характеристики приточно-вытяжных установок Topvex TX указаны в таблице
|
|
Технические данные |
Модель |
TX03HW |
||||||||||||
|
Напряжение |
В |
230 |
|||||||||||||
|
Частота |
Гц |
50 |
|||||||||||||
|
Мощность двигателя |
Вт |
2х514 |
|||||||||||||
|
Мощность нагревателя |
кВт |
- |
|||||||||||||
|
Предохранитель |
А |
10 |
|||||||||||||
|
Вес |
кг |
203 |
|||||||||||||
|
Фильтр, приточ.воздух |
- |
F7 |
|||||||||||||
|
Фильтр, вытяжной.воздух |
- |
F5 |
|||||||||||||
|
Фазность |
3 |
3 |
|||||||||||||
|
|
|||||||||||||||
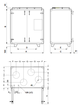
|
|
A |
B |
C |
D |
E |
F |
G |
H |
I |
J |
K |
L |
N |
||
|
TX04EL |
1480 |
1280 |
850 |
1200 |
570 |
209 |
354 |
315 |
220 |
345 |
163 |
315 |
740 |
||
|
|
|
|
|
|
(0)
|
|
|
|
|
|
|
(0)
|
|
|
|
|
|
|
(0)
|
|
|
|
|
|
|
(0)
|
Новости, обзоры и акции
