Время работы:
ПН-ПТ 8-21
СБ-ВС 10-16

 Заказать звонок
RU
Для проектировщиков, монтажников и строителей эксклюзивные условия на товары, работы и услуги. Звоните, договоримся!

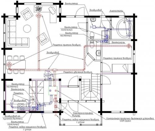
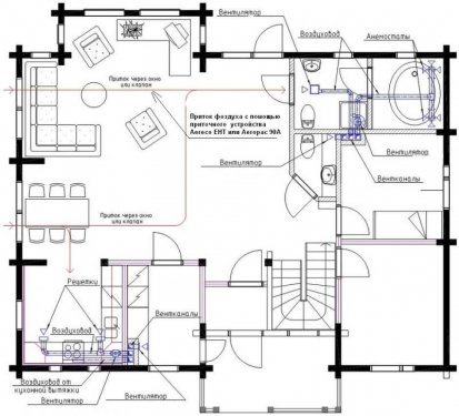
Проектирование и монтаж коттеджей

У нас цены настолько низкие
что их пришлось убрать. Звоните!

В наличии
Запрос цены
Запросить цену
Проектирование и монтаж коттеджей
Имя*
Телефон*
Время звонка*
Сообщение
Код с картинки*
CAPTCHA
Артикул: -
(0)
Заказать звонок
Имя*
Телефон*
Время звонка*
Сообщение
Код с картинки*
CAPTCHA

{cpt_news_short_list news_num='5' overridestyle=''}