Новости, обзоры и акции
Новости, обзоры и акции
|
|
|
|
|
|
(0)
|
RCE-20
Пеллетная горелка RCE-20 является отличной альтернативой пеллетным котлам, поскольку она стоит гораздо дешевле, однако выполняете практически те же самые функции. Вы можете очень легко встроить эту горелку в уже существующих котел и начать экономить на топливе уже в сию минуту. Пеллетные горелки характеризуются тем, что они подаются в горелку автоматически и не требуют вмешательств человека. Все, что от вас требуется, это периодически добавлять в бункер пеллеты, а дальше автоматика сделает все за вас. Таким образом, пеллеты помещаются в бункер. Горелкой управляет контроллер, который основуется на показаниях датчиков и следит за тем, чтобы температура отопления соответствовала заданной. Контроллер дает сигнал шнеку подавать пеллеты непосредственно в горелку, после чего присходит их сгорание. Когда температура сгорания становится слишком высокой, контроллер переводит горелку в режим ожидания. При этом, пеллеты не совсем тухнут - они продолжают тлеть. Со временем, температура теплоносителя начинает опускаться. Когда она достигает заданных параметров, контроллер снова запускает вентилятор и пеллеты разгораются снова. Если теплоноситель будет охлаждаться слишком долго и пеллеты за это время потухнут, тогда включится автоматический розжиг. Весь этот процесс будет происходить автоматически и вам не нужно будет постоянно отвлекаться на котел и смотреть, все ли в порядке с его работой. Устройство
Камера имеет трубчатую конструкцию, которая значительно повышает эффективность сгорания. На корпусе горелки есть поворотная крышка, которая предохраняет элементы горелки от внешнего воздействия и позволяет легко осуществлять различные сервисные операции. Горелка имеет пирометрический датчик, котрый регулирует наличие пламени. Принцип работыФакельная горелка позволяет значительно увеличить КПД твердотопливного котла. К тому же, она обладает относительно небольшими габаритами и может использоваться там, где обычная горелка для обьемного сжигания не может быть установлена по причине отсутствия свободного места. Пеллеты сжигаются благодаря воздушному потоку, который создается с помощью вентилятора. Пеллеты попадают в горелку, а затем они очень быстро сгорают, образуя факел пламени, из-за чего и получили свое название. При этом выделяется очень высокая температура - около 1200С. Горячие газы, которые попадают в конвективную часть котла, обогревают теплоноситель и далее удаляются через дымоход. Факельная горелка RCE-20 имеет упрощенную систему управления.
AutostartГорелка имеет встренную функцию Autoatsrt, котрая позволяет записывать все текущие настройки горелки. Если внезапно пропадет напряжени, то с помощью этой функции настройки автоматически возобновлятся, и вам не нужно будет заново настраивать устройство. Режим “Волна”Если вы включете данный режим, это позволяит вам не слышать традиционных хлопков в топке котла, которые появляются при его запуске. Таким образом, котел будет работать бесшумно и не будет отвлекать вас от других дел различными посторонними звуками.![]() Преимущества
КомплектацияВ комплект поставки пеллетной горелки RCE-20 входит:
Производитель дает возможность укомплектовать горелку дополнительными устройствами:
|
RCE-20 |
||
|
|
||
|
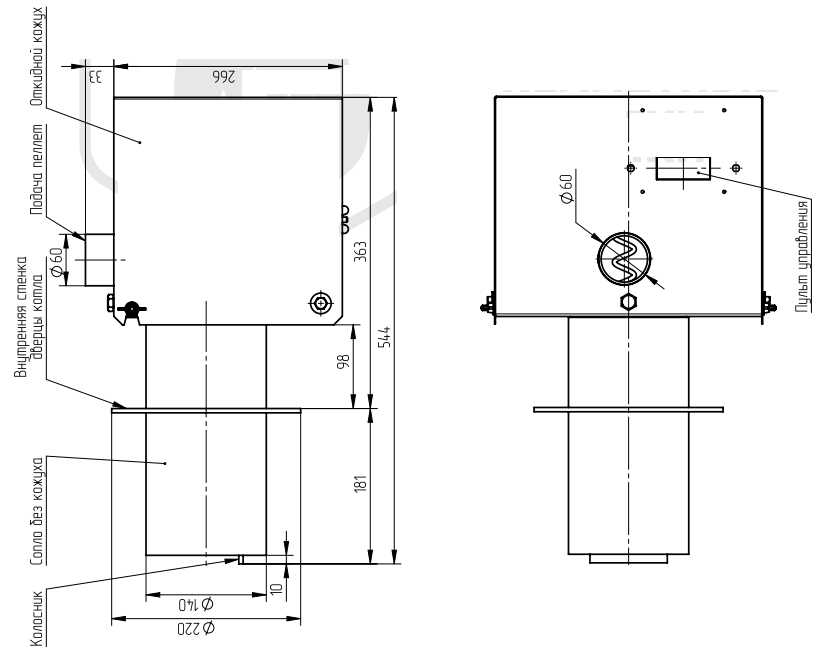
Характеристики |
Ед.измер. |
Значение |
|
Общая длина |
мм |
540 |
|
Длина корпуса горелки |
мм |
265 |
|
Длина топки |
мм |
280 |
|
Диаметр топки |
мм |
140 |
|
Общая высота |
мм |
340 |
|
Высота корпуса горелки |
мм |
266 |
|
Общая ширина |
мм |
342 |
|
Ширина корпуса горелки |
мм |
312 |
|
Отверстие для горловины горелки |
мм |
60 |
|
Диаметр кольца фланца |
мм |
220 |
|
Отверстия под болты |
мм |
150 |
|
Напряжение питания |
V |
220-240 |
|
Мотор-редуктор шнека-питателя |
Вт |
180 |
|
Максимальная мощность |
Вт |
450 |
|
Средняя мощность |
Вт |
40-50 |
|
Вес |
кг |
42 |
|
Тепловая мощность горелки |
||
|
Минимальная |
кВт |
5 |
|
Номинальная |
кВт |
20 |
|
Максимальная |
кВт |
30 |
|
Цена, грн с НДС |
||


|
|
|
|
|
|
(0)
|
|
|
|
|
|
|
(0)
|
|
|
|
|
|
|
(0)
|
|
|
|
|
|
|
(0)
|
Новости, обзоры и акции


Пеллетная горелка факельного типа RCE-20 позволяет отлично сократить расходы на отопление, а так же обеспечить помещение теплом на долгое время. Позволяет отапливать помещение до 250 кв. м.
Камера сгорания пеллетной горелки RCE-20 изготавливается из жаропрочной стали и рассчитана на длительный срок эксплуатации. 

имеет функцию автоматического зажигания;
Топливная гранула - внешний шнек подачи пеллет;