Новости, обзоры и акции
Новости, обзоры и акции
|
|
|
|
|
|
(0)
|
Рекуператор воздуха способствует нормализации температурного режима внутри помещения. Устройство втягивает воздушные потоки с улицы, смешивая его с воздушными потоками внутри помещения, тем самым уравновешивая температурный показатель. Оборудование отличается высокой производительностью, поэтому может обслуживать комнаты с большой площадью. При помощи рекуператора устанавливается барьер, поэтому в помещение почти не попадают насекомые, аллергены и пыль, также почти исключаются сквозняки.
Устройство оборудовано качественным и герметичным корпусом. Оснащено осевым вентилятором с большой производительностью. При этом рекуператор работает практически бесшумно.
Монтаж производится в жилых помещениях частных и многоквартирных домов. Эксплуатация разрешена только при сухом воздухе (влажность максимум 80%). Оптимальный рабочий температурный режим в пределах от +50 до +40 градусов.
Купить рекуперационные установки можно в Украине на официальном сайте проектно-монтажной компании по доступным ценам. Доставка производится во все регионы страны. Монтаж производят профессиональные мастера на объекте клиента.
Остальные модели рекуператоров по ссылке
|
Рекуперационная установка 2VV HRV50АC |
||
|
|
||
|
Характеристики |
Величина |
|
|
Максимальный воздушный поток м3/ч |
515 |
|
|
Класс фильтра подводящего канала |
G5+M2 |
|
|
Выпускной класс фильтра |
G4 |
|
|
Фаза шт. |
1 |
|
|
Напряжение В |
50 | |
|
Частота Гц |
230 |
|
| Мощность вентиляторов Вт |
230 |
|
| Мощность предварительного нагревателя Вт |
2.5 |
|
| Вес кг |
35 |
|
| Диаметр трубопровода мм |
250 |
|
| Высота устройства мм |
360 |
|
| Ширина устройства мм |
846 |
|
| Длина устройства мм |
1391 |
|
|
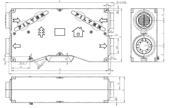
Габаритные размеры, мм |
|||||||||||||||||||||||
| А | В | С |
D |
E |
F |
G |
H
|
I |
J | K | |||||||||||||
| 1505 | 1391 | 1441 | 248 | 846 | 249 | 360 | 180 | 235 | 420 | 190 | |||||||||||||
|
|
|
|
|
|
(0)
|
|
|
|
|
|
|
(0)
|
|
|
|
|
|
|
(0)
|
|
|
|
|
|
|
(0)
|
Новости, обзоры и акции

