Новости, обзоры и акции
Новости, обзоры и акции
|
|
|
|
|
|
(0)
|
Вентилятор KPB 22/22
Общие сведения:
Вентиляторы Systemair KPD/KPB (Blowtech) рекомендованы для использования в системах вытяжной кухонной вентиляции.
Конструктивные особенности позволяют вентиляторам Systemair KPD/KPB работать с максимальными значениями нагрузки, обеспечивают длительный срок эксплуатации и одновременно значительно снижают периодичность обслуживания.
Конструкция:
Корпус вентиляторов серии Systemair KPD/KPB выполнен из алюминиевого профиля с высокими антикоррозионными свойствами.
Корпус имеет съёмные изоляционные панели с двойной обшивкой. В зависимости от конструкции панели бывают одинарными или двойными.
Съемные панели изготовляются из листовой, предварительно оцинкованной стали. Внутреннее пространство панелей заполнено пенополиуретаном (толщиной 15 мм) для тепловой и акустической изоляции.
|
Вентилятор Systemair KPB |
22/22 |
||||||||||||
|
Напряжение / число фаз |
В / Ф |
400 / 3 |
|||||||||||
|
Частота |
Гц |
50 (60) |
|||||||||||
|
Потребляемая мощность |
kВт |
0,37-11 |
|||||||||||
|
Максимальный расход воздуха |
м3/час |
30000 |
|||||||||||
|
Частота вращения |
об/мин |
1450 |
|||||||||||
|
Класс изоляции двигателя |
- |
F |
|||||||||||
|
Класс защиты двигателя |
IP |
55 |
|||||||||||
|
Схема подключения первая/вторая скорость |
- |
13а/14а |
|||||||||||
|
Вес |
кг |
300-373 |
|||||||||||
|
|
|||||||||||||
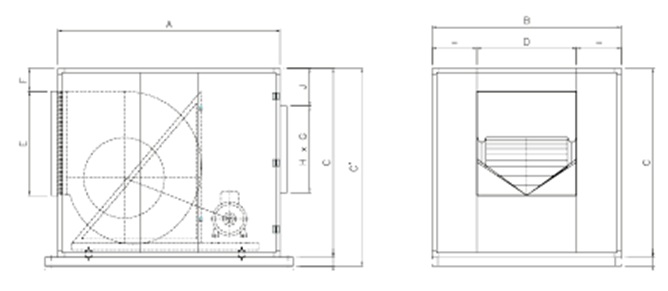
|
22/22 |
A |
A’ |
B |
C |
C’ |
D |
E |
F |
G |
H |
J |
||
|
1650 |
1880 |
1350 |
1250 |
1330 |
661 |
701 |
112 |
1270 |
900 |
175 |
|||
Аэродинамические характеристики

|
|
|
|
|
|
(0)
|
|
|
|
|
|
|
(0)
|
|
|
|
|
|
|
(0)
|
Новости, обзоры и акции


