Новости, обзоры и акции
Новости, обзоры и акции
|
|
|
|
|
|
(0)
|
Применяется в помещениях, где наблюдается высокое влаговыделение. Может успешно использоваться в бассейнах, аквапарках любых размеров и различной сложности выполнени - это могут быть небольшие частные бассейны, спортивные комплексы или же крытые аквапарки. Детали данной установки устойчивы к воздействию коррозии.
Характеристики:
Установка используется в бассейнах, аквапарках, имеющих различную площадь и сложность выполнения. Широкий диапазон моделей Pool Star-4 дает позволяет использовать установку в бассейнах с различной величиной. Это могут быть как спортивные комплексы, небольшие бассейны, крытые аквапарки. Утилизация тепла в установке в PoolStar-4 – двухступенчатая, за счет чего появляется большая экономия затрат на энергоресурсы при высокой энергоэффективности объекта. Установка коррозийно-устойчива, ее детали выполняются из нержавеющих материалов. Комплект автоматики позволяет создать в помещении оптимальный микроклимата.
Комплект автоматики создает оптимальный микроклимат, предотвращает конденсацию влаги в помещении бассейна. Есть возможность интегрировать в автоматику систему диспетчеризации и управления объектом. Вентиляторы с прямым приводом, устойчивы к коррозии, высокоэффективны. Секция нагрева позволяет с высокой и быстрой точностью создавать в необходимую температуру воздуха. Отбор теплоты из вытяжного воздуха осуществляется при помощи встроенного теплового насоса, затем тепло передается для нагрева в бассейне воды. Благодаря этому достигается стопроцентное использование тепловой энергии, вырабатываемой компрессором. Фильтры вытяжного и приточного воздуха класса очистки не меньше, чем G4.
Зима (Основной режим). Основной режим для зимнего времени, осуществляется влагоудаление и подача в бассейн свежего воздуха .Вентиляторы работают на 100%. Подмес свежего воздуха 30%. Работает тепловой насос.
Купить Aerostar PoolStar 4 с водяным конденсатором Вы можете прямо на сайте нашего интернет-магазина вентиляции. Качество обслуживания, надежность гарантии, грамотная консультация и своевременная доставка заказа – это то, что ожидает Вас в сотрудничестве с нами.
Характеристики вентилятора установки |
|
|
Расход воздуха |
4000 куб.м. в час |
|
Сопротивление сети |
550 ПА |
|
Мощность потребления |
8.8 кВт |
|
Зеркало воды |
100 кв.м. |
|
Количество удаляемой влаши |
10.3/16.9 л / час |
|
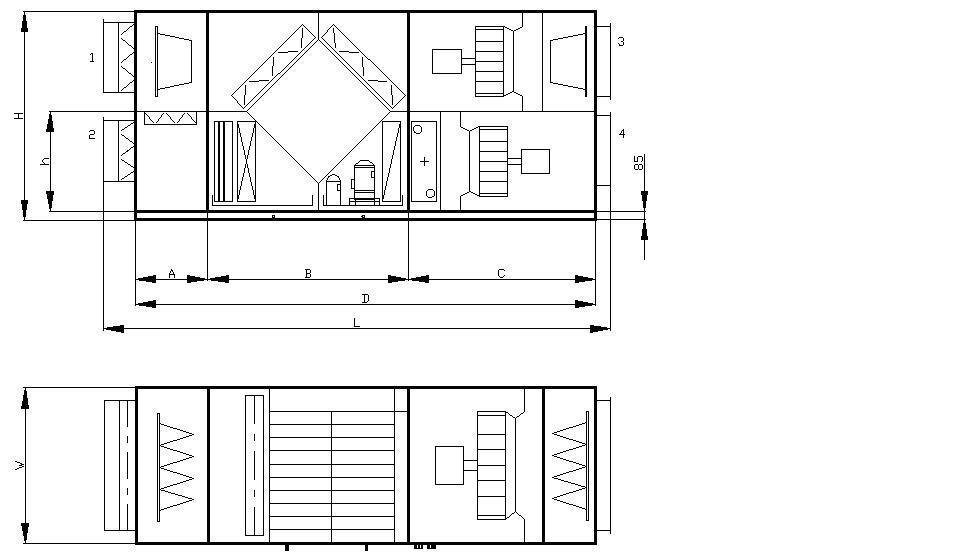
A |
B |
C |
D |
h |
H |
W |
L |
|
729 |
1589 |
1589 |
3907 |
700 |
1485 |
1100 |
4397 |
|
|
|
|
|
|
(0)
|
|
|
|
|
|
|
(0)
|
|
|
|
|
|
|
(0)
|
|
|
|
|
|
|
(0)
|
Новости, обзоры и акции
