Новости, обзоры и акции
Новости, обзоры и акции
|
|
|
|
|
|
(0)
|
Циклон П-ЦМ-800У спроектирован для использования практически во вех сферах промышленности для борьбы с экстремальными видами пылевых загрязнителей воздуха.
Циклон ЦМ-800У обладает одним характерным отличием: в его области применения практически не существует ограничений по видам пыли, с которыми допустима эффективная и качественная работа данного пылеуловителя. Любые характеристики пылевых загрязнителей, с которыми работает этот циклон, – плотность, форма, размер – не имеют никакого значения. Это предусмотрено особенностями конструкции этого уникального аппарата. Единственное исключение – цементная пыль либо подобные ей частицы, которые могут налипать на стенки циклона.
Допустимая запыленность воздуха, г/м?– 250. Температура очищаемого газа, °С - не более 150. Давление (разрежение), кПа (кгс/м?) - не более 2 (200). Потери давления, Па - 500-1800. Эффективность очистки воздуха, % - 98-99. Дисперсность пыли, мкм – 10. Оптимальная скорость в циклоне: 4 м/сек.
Выгрузка пыли является ответственной и обязательной частью обслуживания циклона и должна быть обеспечена ее регулярность. Если этого не сделать, то забитый пылью бункер циклона будет влиять на качество очистки и скорость. Она станет низкой. Выгрузку пыли можно осуществлять с разной интенсивностью. Главным образом на это влияет размер бункера, который изготавливается по личным пожеланиям заказчика.
Более подробную информацию о Циклонах ЦМ смотрите ЗДЕСЬ!

|
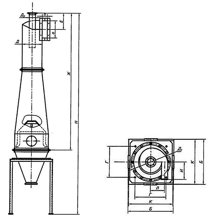
Размеры в мм |
|||||||||||
|
Б |
Г |
Д |
Д1 |
Е |
Ж |
И |
К |
Л |
H |
a |
b |
|
1460 |
1100 |
800 |
1370 |
640 |
4770 |
560 |
1400 |
600 |
6880 |
640 |
210 |
Характеристики |
|
|
№ Циклона |
ЦМ-П-800У |
|
Производительность по воздуху |
6000-9000 м3/ч |
|
Диаметр |
800 мм |
|
Высота |
6880 мм |
|
Размер патрубков |
640х210 |
|
Масса |
540 кг |
|
|
|
|
|
|
(0)
|
|
|
|
|
|
|
(0)
|
|
|
|
|
|
|
(0)
|
|
|
|
|
|
|
(0)
|
Новости, обзоры и акции
