Новини, огляди та акції
Новини, огляди та акції
Сейсмостійкі повітряні клапани НЕРПА (Веза) |
|
|
|
|
|
Характеристика |
Значення |
|
Призначення |
відсічний (герметизуючий)/регулюючий |
|
Робочий тиск |
до 10000 Па |
|
Механізм управління |
електропривод/рукоятка |
|
Клас рівня протікання |
3 |
|
Розкриття лопаток |
паралельне |
|
Просторова орієнтація |
не залежить |
|
Кліматичне виконання |
У2/УХЛ3/ТМ2/2 |
|
Варіанти виконання |
Н (загальнопромислові); |
|
Теплопровідність |
вимога не пред'являється |
|
Ціна, грн з ПДВ |
|
Сейсмостійкий повітряний клапан НЕРПА ВезаСейсмостійкі
|
||||||||||||||||||||||||||||||||||||||||||||||||||||||||||||||||||||||||||||||||||||||||||||||||||||||||||||||||||||||||||||||||
Круглі повітряні клапани НЕРПА (Веза) |
||||
|
|
||||
|
Розміри, мм |
Кількість лопаток |
Маса, кг |
||
|
D |
D1 |
L |
||
|
100 |
160 |
200 |
1 |
12,1 |
|
125 |
185 |
200 |
1 |
14,2 |
|
160 |
220 |
200 |
1 |
18,6 |
|
200 |
260 |
200 |
1 |
22,8 |
|
250 |
310 |
350 |
1 |
27,1 |
|
280 |
340 |
350 |
1 |
29,9 |
|
315 |
375 |
350 |
1 |
32,7 |
|
400 |
460 |
350 |
1 |
38,4 |
|
500 |
560 |
350 |
1 |
43,5 |
|
630 |
690 |
350 |
3 |
54,2 |
|
800 |
860 |
350 |
3 |
61,3 |
|
1000 |
1060 |
350 |
3 |
70,2 |
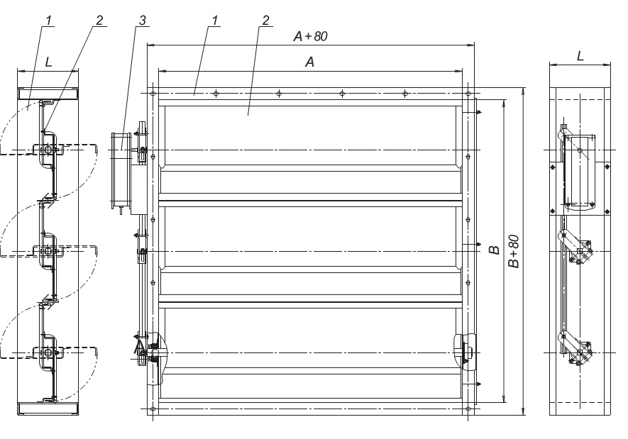
Прямокутні повітряні клапани НЕРПА (Веза) |
||
|
|
||
|
Розміри, мм |
Напруга, В |
|
|
Висота |
Ширина |
|
|
100 |
200 |
220 |
|
200 |
400 |
220 |
|
300 |
500 |
220 |
|
400 |
600 |
220 |
|
500 |
800 |
220 |
|
600 |
1000 |
220 |
|
700 |
1100 |
220 |
|
800 |
1200 |
220 |
|
1000 |
1400 |
220 |
|
1100 |
1600 |
220 |
|
1200 |
- |
220 |
|
1400 |
- |
220 |
|
1600 |
- |
220 |
Новини, огляди та акції
